We want to inform you, that this website is using cookies for correct cart formation and website functions. For more detailed information about cookies, and how to cancel your confirmation, can be found here.

I agree close

House project Audrius

General Information

Total area 195,78 m2
Living space 105,33 m2
Built-up area 141 m2
Length 10,20 m
Width 15,64 m
Height 7,10 m
Roof inclination 11°
productProjectWebPrice € 1.260,00
productProjectPrice € 1.400,00
1. Tambour 4,33  
2. Kitchen - dining room 16,80  
3. Corridor - staircase 22,85  
4. Bathroom 3,11  
5. Living room 18,72  
6. Room 16,46  
7. Pantry 2,62  
8. Boiler room 5,47  
9. Garage 20,72  
Total area: 111,08

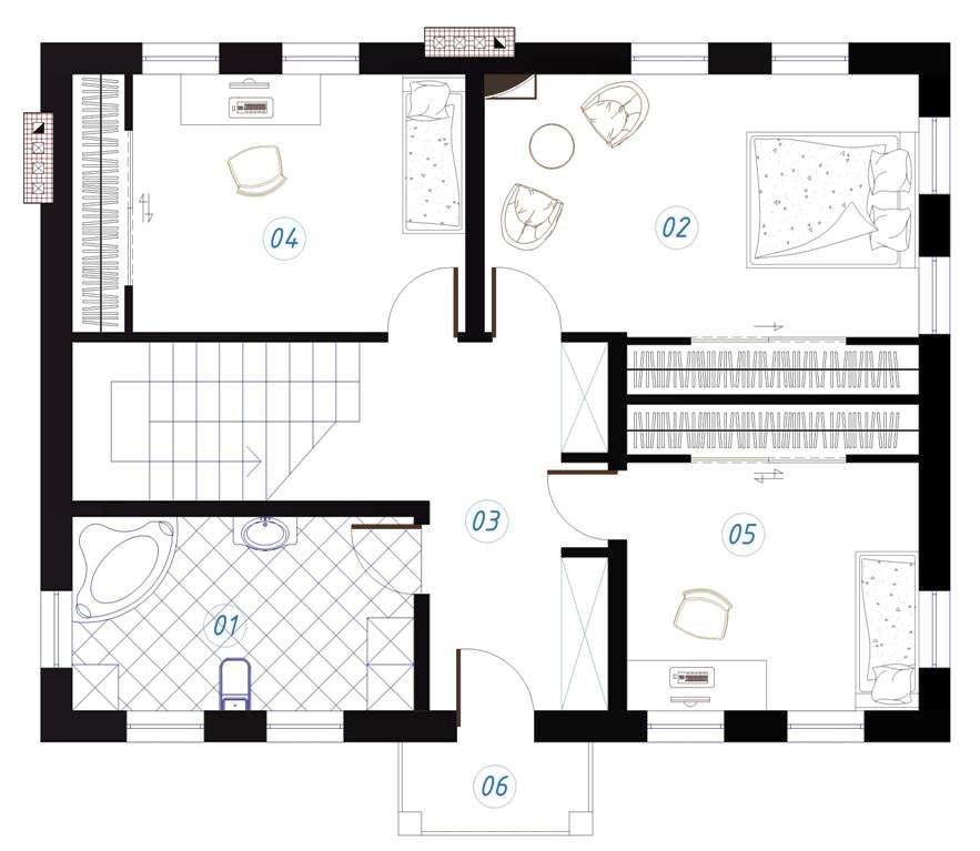
First floor plan

1. Bathroom 11,00  
2. Bedroom 21,63  
3. Corridor - staircase 20,35  
4. Room 16,86  
5. Room 14,86  
Total area: 84,70

Second floor plan

productVideo

Other parameters

Number of floors 2
Number of rooms 4
Bathroom no. 2
Number of garages 1
Usable area 195,78 m2
There is a garage Yes
Min. plot 400 m2
Energy efficiency estimation 72 €
Price with planning permission From 1361 €

The luxurious, exclusive, shimmering classic is "Audrius" house project. This is a two-story, English-style house with afour slope roof for a family of 5-6-persons. The total area of the house is 195.78 m2 and the living area is 105.33 m2. The project clearly identifies four zones: days, rest, work and utility. On the ground floor there is a day zone with living room, kitchen-dining room, WC, corridor - stairway; work area - working (guest) room; utility zone - boiler room, garage, pantry (laundry). The entire area of the mansard is for the recreation area - a parental bedroom and two children's rooms. There is a large bathroom, and closets are designed in all bedrooms. It is a project that will fascinate everyone not only with its exterior elegance, but also with the layout of the internal structure. The project, of course, allows various adjustments, according to the wishes of each client, so that the house will be completely adapted to yours family needs

We recommend
  • NPS statyba
  • Geoline
  • Bodesa
Nuo idėjos iki rakto...

© 2011 UAB “NPS PROJEKTAI” Įm.k.: 301637711. All rights reserved. Privacy policy.

Website creation Website creation OWEXX
Home projects

Need help?

Your questions will be answered by a professional!

Leave a message
Reikia pagalbos?
Menu
Back

House project Audrius

General Information

Total area 195,78 m2
Living space 105,33 m2
Built-up area 141 m2
Length 10,20 m
Width 15,64 m
Height 7,10 m
Roof inclination 11°
productProjectWebPrice € 1.260,00
productProjectPrice € 1.400,00
1. Tambour 4,33  
2. Kitchen - dining room 16,80  
3. Corridor - staircase 22,85  
4. Bathroom 3,11  
5. Living room 18,72  
6. Room 16,46  
7. Pantry 2,62  
8. Boiler room 5,47  
9. Garage 20,72  
Total area: 111,08

First floor plan

1. Bathroom 11,00  
2. Bedroom 21,63  
3. Corridor - staircase 20,35  
4. Room 16,86  
5. Room 14,86  
Total area: 84,70

Second floor plan

productVideo

Other parameters

Number of floors 2
Number of rooms 4
Bathroom no. 2
Number of garages 1
Usable area 195,78 m2
There is a garage Yes
Min. plot 400 m2
Energy efficiency estimation 72 €
Price with planning permission From 1361 €

The luxurious, exclusive, shimmering classic is "Audrius" house project. This is a two-story, English-style house with afour slope roof for a family of 5-6-persons. The total area of the house is 195.78 m2 and the living area is 105.33 m2. The project clearly identifies four zones: days, rest, work and utility. On the ground floor there is a day zone with living room, kitchen-dining room, WC, corridor - stairway; work area - working (guest) room; utility zone - boiler room, garage, pantry (laundry). The entire area of the mansard is for the recreation area - a parental bedroom and two children's rooms. There is a large bathroom, and closets are designed in all bedrooms. It is a project that will fascinate everyone not only with its exterior elegance, but also with the layout of the internal structure. The project, of course, allows various adjustments, according to the wishes of each client, so that the house will be completely adapted to yours family needs

We recommend
  • NPS statyba
  • Geoline
  • Bodesa
Nuo idėjos iki rakto...

© 2011 UAB “NPS PROJEKTAI” Įm.k.: 301637711. All rights reserved. Privacy policy.

Website creation Website creation OWEXX
Desktop www.houseproject.eu version
Mobile www.houseproject.eu version